边锁-PLM/PLF-方形精定位零件-欧标/美标
PLM/PLF(美标)

库存:
规格:

规格:

数量:
-
+


Straight Side Interlocks – PLM/PLF 

边锁-PLM/PLF

产品目录下载

产品3D图下


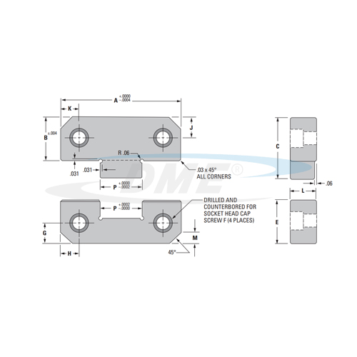
DME镀钛边锁具有业内领先的互换性,凭借精密制造和精准公差,每个DME模具边锁部件均可以单独更换,不需拆除整个部件。


DME-PLM/PLF边锁具有以下特点:
— 自动将模具与边锁腔体和芯体对齐。


安装:
— 每个模具安装四个边锁(一边一个)。
— 在模具每边的中心线上安装边锁,以消除热膨胀。





材质:8620碳化硬化研磨钢,硬度:PLM:50-55HRC,PLF:55-60HRC




对不起,暂无评价!